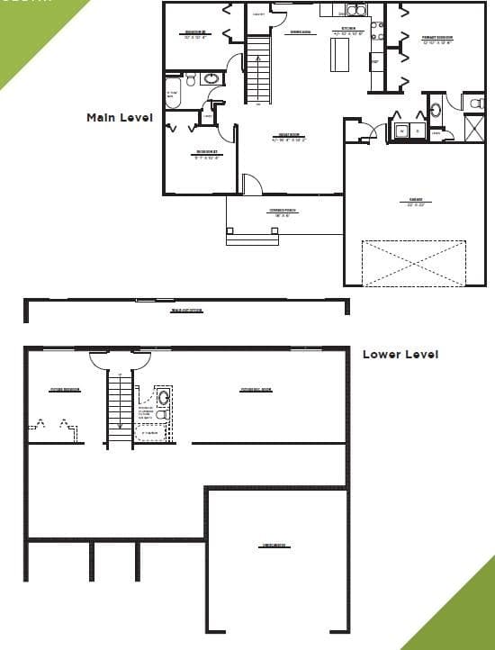
CUSTOM BUILD! This 'Cedar' ranch home plan is situated on lot #227 with a full basement. The Cedar offers 3 bedrooms, 2 full bathrooms, and main floor laundry. Upgrades include quartz countertops, vinyl plank flooring, a 12x12 deck, LG stainless steel kitchen appliances, and central air. This plan is spacious and offers an open concept living area. The kitchen hosts an island, pantry, and slider to the back deck. Private primary suite boasts double closets and full bathroom. The opposite end of the house offers 2 more bedrooms and the second full bath. The basement is partially finished with a 4th bedroom, 3rd bathroom and a family room. Odeno is a custom home development in Fruitport Schools. Winding roads, walking trails, and community ponds set this neighborhood apart. Private and serene, yet just minutes from highway access, shopping, and recreation. Welcome to Odeno- Place of Many Hearts. Some photos may be of previously completed homes. Builder to verify finishes and final sale
Top-Rated School District
Open House
$393,500

6323 Sturgeon Run, Muskegon, MI, 49444

6323 Sturgeon Run, Muskegon, MI, 49444
BEDS
4
BATHS
3
SQUARE FT.
2,074
BUILT IN
2026
Time Advantage
Due to day on market:
10 DAYS

Property Details

Description

CUSTOM BUILD! This 'Cedar' ranch home plan is situated on lot #227 with a full basement. The Cedar offers 3 bedrooms, 2 full bathrooms, and main floor laundry. Upgrades include quartz countertops, vinyl plank flooring, a 12x12 deck, LG stainless steel kitchen appliances, and central air. This plan is spacious and offers an open concept living area. The kitchen hosts an island, pantry, and slider to the back deck. Private primary suite boasts double closets and full bathroom. The opposite end of the house offers 2 more bedrooms and the second full bath. The basement is partially finished with a 4th bedroom, 3rd bathroom and a family room. Odeno is a custom home development in Fruitport Schools. Winding roads, walking trails, and community ponds set this neighborhood apart. Private and serene, yet just minutes from highway access, shopping, and recreation. Welcome to Odeno- Place of Many Hearts. Some photos may be of previously completed homes. Builder to verify finishes and final sale

Find out more about this home

Tour Request

Ready to Make This Home Yours?

Calculate Your Monthly Payment

Use our free mortgage calculator to estimate your monthly payment for this property.

Calculate Payment

Get Pre-Approved

Secure your financing with our trusted lending partners in just minutes.

Start Pre-Approval

Looking for more options in Muskegon?

View All Homes in Muskegon

Key Details

Price per Sqft189.72999035679845
MLS Listing ID70507887
Square Footage2,074 Sqft
Lot Size0.21
Originating BoardRealcomp MLS
HOA Fee$500

Location

StateMI
CountyMuskegon
AreaMuskegon
Zoning49444

Interior

Heating["Forced Air", "Natural Gas"]
Heat SourceNatural Gas

Exterior

PoolNo
Waterfrontno
Roof TypeN/A

Building

Lot DimensionsN/A
SewerSewer (Sewer-Sanitary)
WaterPublic (Municipal)
Structure Type

Others

Tax ID0824210132
Ownership
Acceptable FinancingCash, Conventional, VA

Schools / Nearby Schools

Top-Rated School DistrictTop-Rated
Source: GreatSchool.org © 2025. All rights reserved.
Walkability Score
8 / 10
Alameda High School
High School
Walkability Score
7 / 10
Lincoln Middle School
Middle School
Walkability Score
8 / 10
Frank Otis Elementary School
Elementary School
Loading nearby places...
Loading scores...
Loading calculator...

Similar Homes for Sale

Loading similar properties...
IDX Logo

IDX provided courtesy of Realcomp II Ltd. via GoodHome Realty and MLS. Copyright 2025 Realcomp II Ltd. Shareholders. IDX information is provided exclusively for consumers' personal, noncommercial use and may not be used for any purpose other than to identify prospective properties consumers may be interested in purchasing.

The accuracy of all information, regardless of source, is not guaranteed or warranted. All information should be independently verified.

The data relating to real estate properties on this website was last updated as recently as 12/26/2025 11:00:00 PM EST.

Listing Information presented by local MLS brokerage: GoodHome Realty and MLS, Inc., REALTOR® - Quinton Lemond - (248) 928-4992.