



NO IMAGE
NO IMAGE
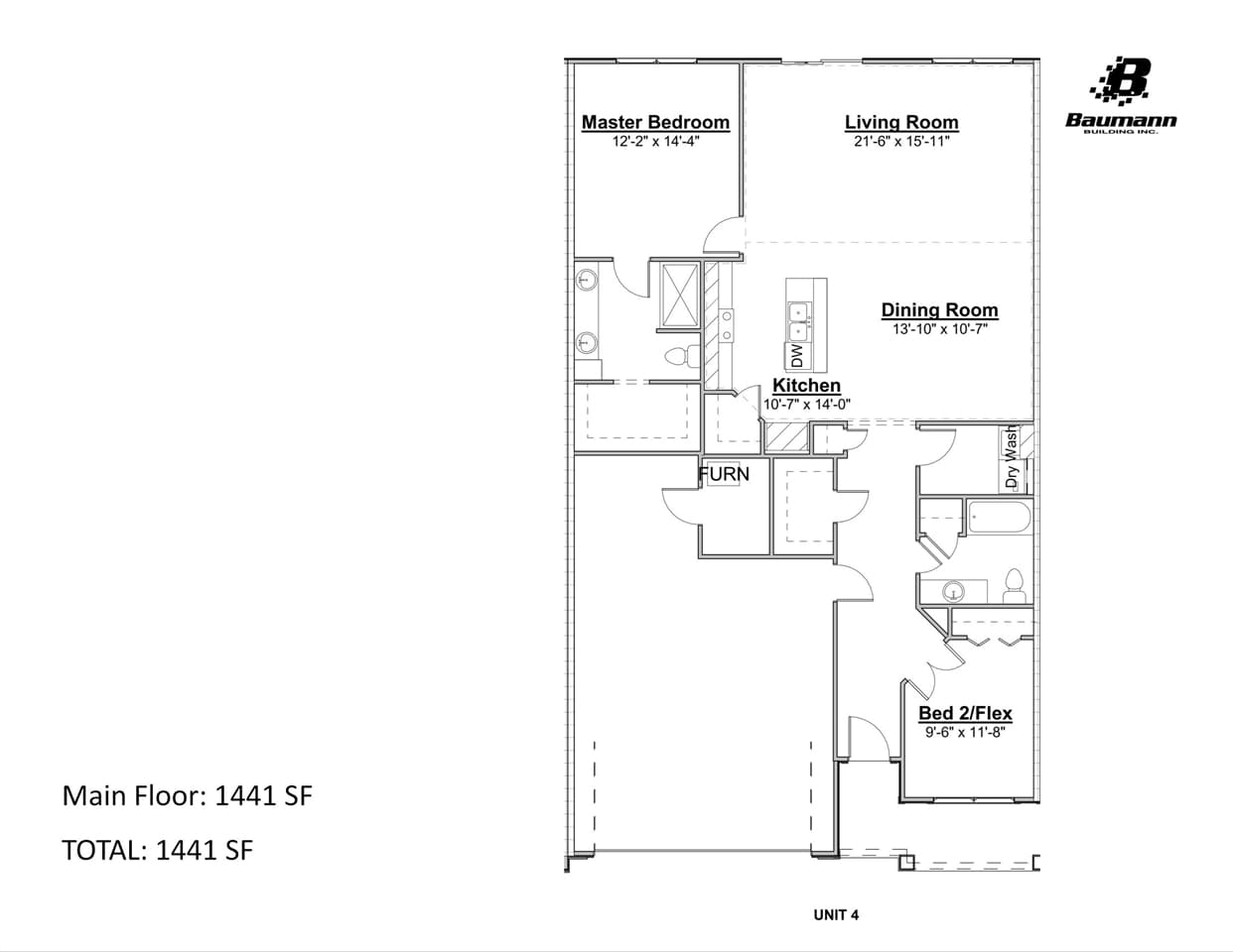
11963 Smithfield Drive Lot 4, Holland, MI, 49424

Property Details
Description
These brand new Smithfield condos, built by Baumann Building, are quickly becoming the opportunity to not miss out on in Holland! This thoughtfully designed home is currently under construction and ready for you to make it your own. Featuring 2 spacious beds and 2 full baths, this open-concept layout is perfect for relaxing or entertaining. The heart of the home is a stunning kitchen complete with a 7-ft island, walk-in pantry, and soaring cathedral ceilings that flow seamlessly into the dining and living areas. In the primary suite you'll find dual sinks and a generous walk-in closet for ultimate convenience.One member of selling entity is a Licensed Real Estate Agent.
Find out more about this home
Tour Request
Ready to Make This Home Yours?
Calculate Your Monthly Payment
Use our free mortgage calculator to estimate your monthly payment for this property.
Calculate PaymentGet Pre-Approved
Secure your financing with our trusted lending partners in just minutes.
Start Pre-ApprovalLooking for more options in Holland?
View All Homes in Holland →

