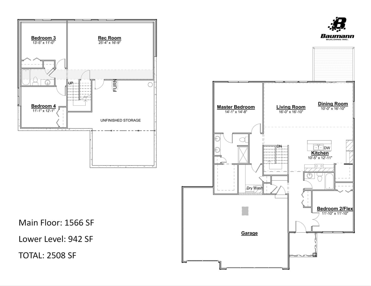
Your brand new ranch home is being built for you! This Cottonwood floorplan is currently being built by Baumann Builders in the Hickory Woods Forest neighborhood in Holland. This large home features 4 bedrooms and 3 full baths to accompany a beautiful open design living room, dining room, and kitchen, with a nice island for everyone to gather around and a sliding glass door to an outdoor deck. It has a full rec room, 2 bedrooms and a full bath in the daylight lower level. This location is wonderful, with quick and easy access to shopping and dining and still 13 minutes to the beach! If you would like to make this Cottonwood yours, reach out to tour.
Top-Rated School District
Open House
$524,900

3654 Tulipleaf Drive Lot 244, Holland, MI, 49424

3654 Tulipleaf Drive Lot 244, Holland, MI, 49424
BEDS
4
BATHS
3
SQUARE FT.
2,508
BUILT IN
2025
Time Advantage
Due to day on market:
15 DAYS

Property Details

Description

Your brand new ranch home is being built for you! This Cottonwood floorplan is currently being built by Baumann Builders in the Hickory Woods Forest neighborhood in Holland. This large home features 4 bedrooms and 3 full baths to accompany a beautiful open design living room, dining room, and kitchen, with a nice island for everyone to gather around and a sliding glass door to an outdoor deck. It has a full rec room, 2 bedrooms and a full bath in the daylight lower level. This location is wonderful, with quick and easy access to shopping and dining and still 13 minutes to the beach! If you would like to make this Cottonwood yours, reach out to tour.

Find out more about this home

Tour Request

Ready to Make This Home Yours?

Calculate Your Monthly Payment

Use our free mortgage calculator to estimate your monthly payment for this property.

Calculate Payment

Get Pre-Approved

Secure your financing with our trusted lending partners in just minutes.

Start Pre-Approval

Looking for more options in Holland?

View All Homes in Holland

Key Details

Price per Sqft209.2902711323764
MLS Listing ID70498457
Square Footage2,508 Sqft
Lot Size0.2
Originating BoardRealcomp MLS
HOA FeeN/A

Location

StateMI
CountyOttawa
AreaHolland
Zoning49424

Interior

Heating["Forced Air", "Natural Gas"]
Heat SourceNatural Gas

Exterior

PoolNo
Waterfrontno
Roof TypeN/A

Building

Lot DimensionsN/A
SewerSewer (Sewer-Sanitary)
WaterPublic (Municipal)
Structure Type

Others

Tax ID0824210132
Ownership
Acceptable FinancingCash, Conventional, VA

Schools / Nearby Schools

Top-Rated School DistrictTop-Rated
Source: GreatSchool.org © 2025. All rights reserved.
Walkability Score
8 / 10
Alameda High School
High School
Walkability Score
7 / 10
Lincoln Middle School
Middle School
Walkability Score
8 / 10
Frank Otis Elementary School
Elementary School
Loading scores...
Loading calculator...

Similar Homes for Sale

Loading similar properties...
IDX Logo

IDX provided courtesy of Realcomp II Ltd. via GoodHome Realty and MLS. Copyright 2025 Realcomp II Ltd. Shareholders. IDX information is provided exclusively for consumers' personal, noncommercial use and may not be used for any purpose other than to identify prospective properties consumers may be interested in purchasing.

The accuracy of all information, regardless of source, is not guaranteed or warranted. All information should be independently verified.

The data relating to real estate properties on this website was last updated as recently as 12/26/2025 11:00:00 PM EST.

Listing Information presented by local MLS brokerage: GoodHome Realty and MLS, Inc., REALTOR® - Quinton Lemond - (248) 928-4992.